4 bed Maisonette in Mayfair Road
Property Description
We think you'll love this property because of its open plan lounge-kitchen and two shower rooms.
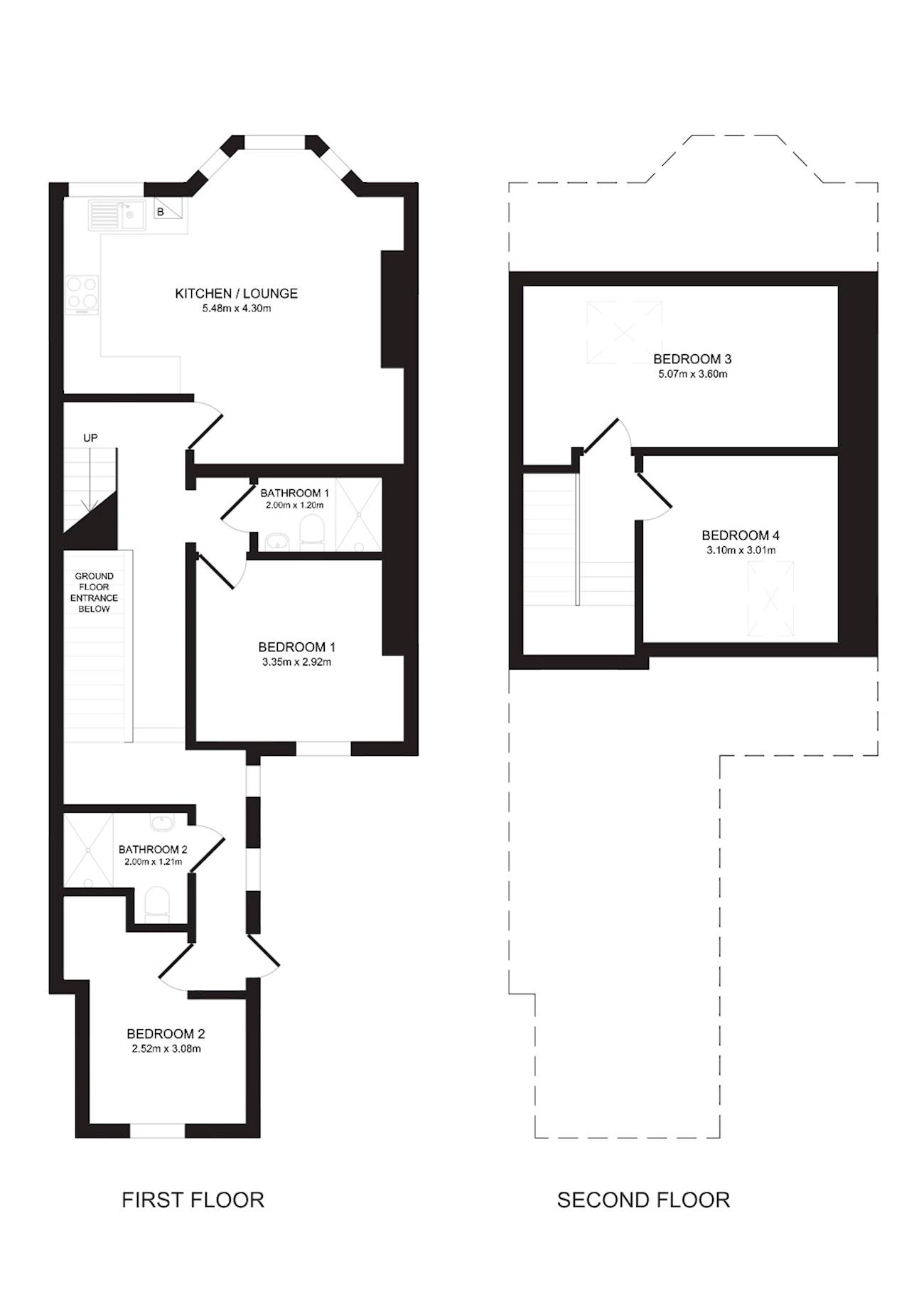
This four bedroom maisonette has been remodeled to provide spacious accommodation through, with four good size bedrooms, two shower rooms, a lounge with open plan kitchen.
The property is located in popular West Jesmond a short walk from West Jesmond Metro Station and the bars/restaurants and shops such as Sainsbury and Tesco, yet also within an easy walk of both Uni's and Newcastle City Centre.
Each bedroom has at least ¾ Bed with mattress, desk, chair, wardrobe and chest of drawers.
Early Viewing is Recommended - call us today to discuss similar properties like this one.
UPFRONT COST (DEPOSIT): £400.00 per tenant
Energy Performance Certificates
Interested in a viewing?
enquire now!







